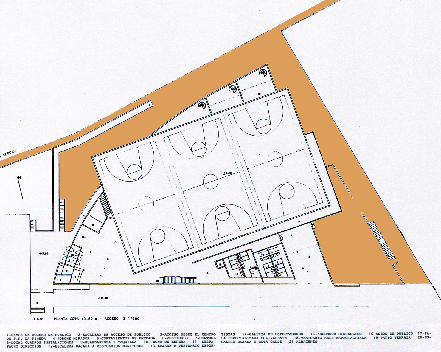
Un solar complejo nos lleva a una formas complejas que forman un puzzle y la gran curva de la fachada principal invita a la entrada

1992 con Carmen de Juan Martínez, arquitecta.