Escuela de Turismo de Málaga – Proyecto de Reforma

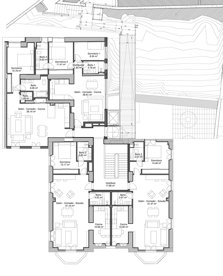
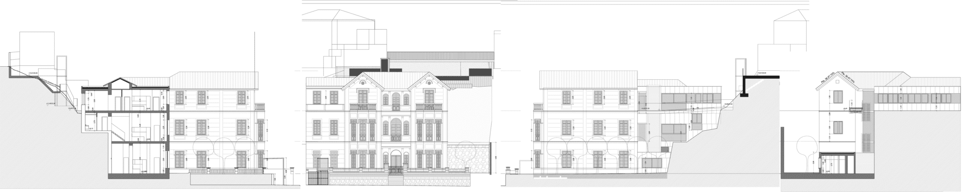
La reforma del icónico edificio de la Escuela de Turismo de Málaga, para alojar 15 viviendas de 1 y 2 dormitotios, busca respetar y poner en valor la arquitectura del edificio original, y reformar , integrando, las ampliaciones hechas en los años 50. En la parte posterior  se instala un ascensor exento acistalado que da servicio a las 3 plantas del edificio y conecta, por medio de un puente metálico con la piscina construida en la ladera norte , dando fachada a la calle Monte de Sancha.

Proyectos relacionados

Vacaciones en Águilas

Vacaciones en Águilas

Interior, Reformas
Señalética Escuela de Arquitectura en Málaga

Señaléticas Escuela de Arquitectura Málaga

Reformas
Escenografía para Luz Casal

Escenografía para Luz Casal

Interior, Reformas
Escuela de Turismo de Málaga - Estado actual

Escuela de Turismo de Málaga – Estado actual

Interior, Precisión, Reformas, Urbano
Adaptación Accesibilidad

Adaptación Accesibilidad

Interior, Reformas
Reforma de oficina - Procesos constructivos

Reforma de oficina- Procesos Constructivos

Contraste, Interior, Reformas
Una oficina de arquitectura

Una oficina de arquitectura

Interior, Precisión, Reformas
Acceso Facultad de Ciencias UMA

Acceso Facultad de Ciencias UMA

Contraste, Paisaje, Reformas, Urbano
La Alvaroteca

La Alvaroteca

Contraste, Interior, Reformas
Expositor de joyas Jorge Rojas

Expositor de joyas – Jorge Rojas

Interior, Reformas
Modexpor - Agencia de marketing

ModExpor – Agencia de casting

Interior, Reformas