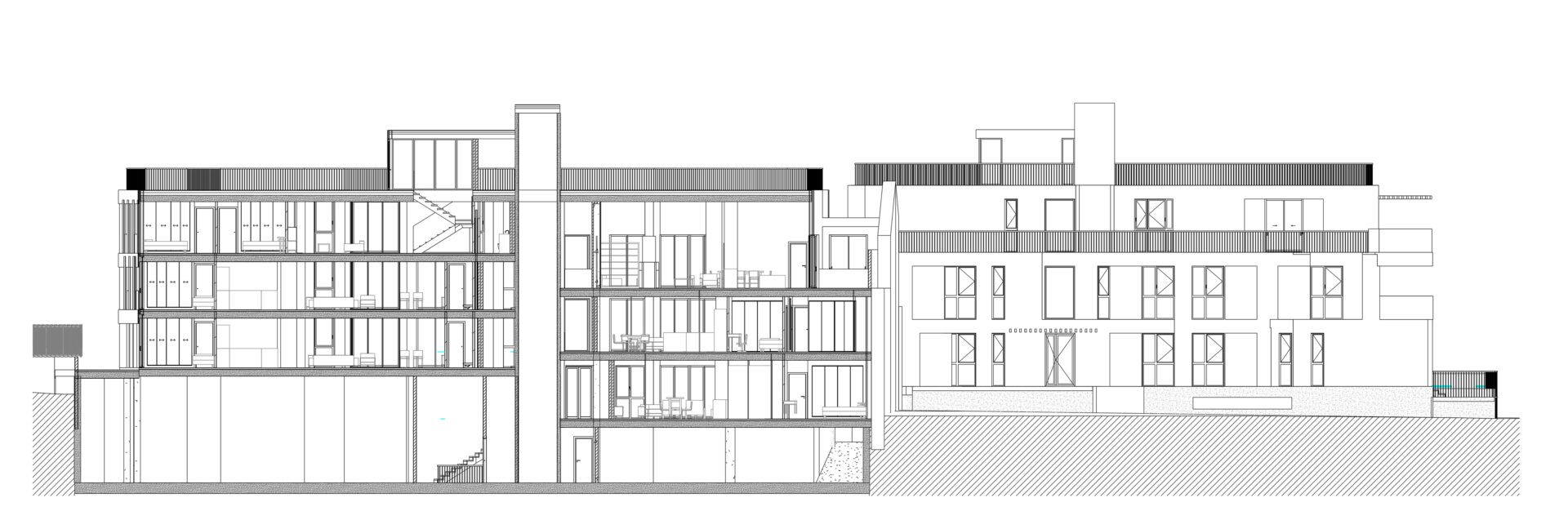
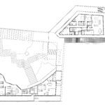
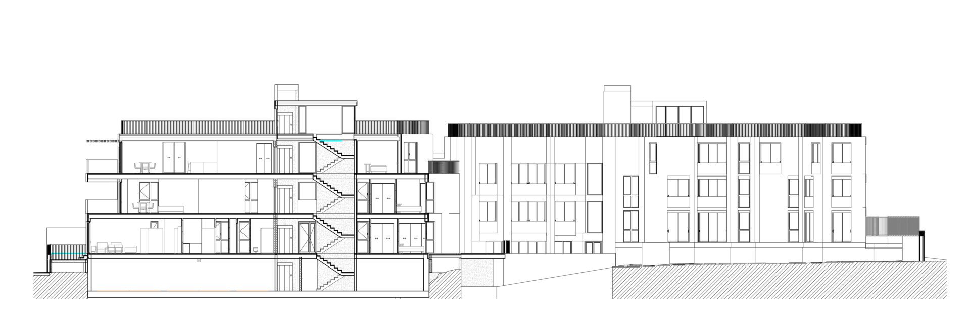
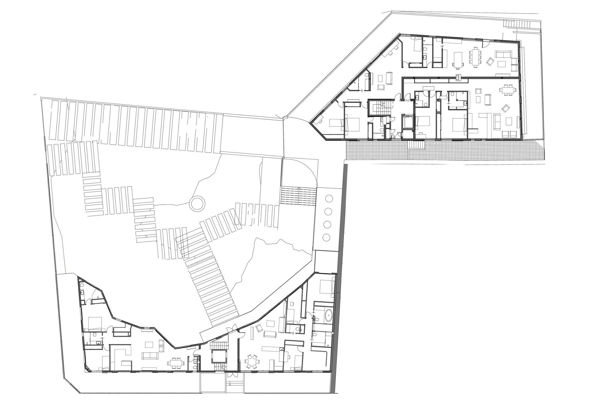
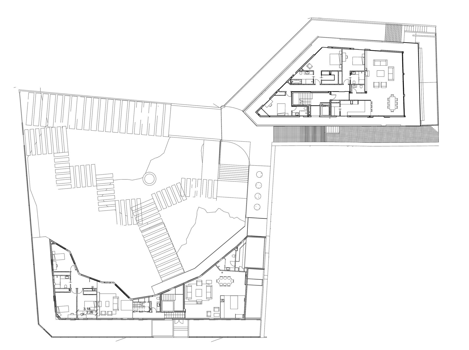
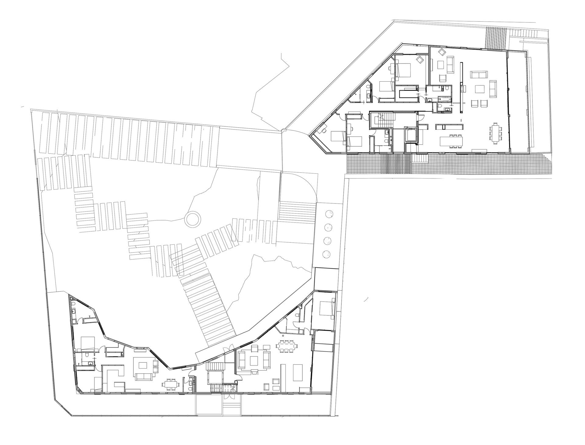
Edificio de viviendas en Paseo de Sancha, Málaga

El proyecto establece un dialogo con el fantastico Ficus que domina la parcela en el frente al Paseo de Sancha, creando un edificio dual de viviendas de lujo que miran hacia la ciudad y hacia el paseo Maritimo.
Proyecto básico desarrollado en colaboración con el estudio del Dr Arquitecto Eduardo Rojas Moyano.

Proyectos relacionados

Casa atalaya en Torrox costa

Casa Atalaya en Torrox Costa

Contraste, Paisaje, Viviendas
Ampliación de vivienda

Ampliación de vivienda

Contraste, Precisión, Viviendas
Tres edificios de apartamentos turísticos en Morche

3 edificios de Apartamentos turísticos en el Morche

Contraste, Paisaje, Viviendas
Casa en Antonio Clavero, 82

Casa en Antonio Clavero, 82

Contraste, Interior, Precisión, Urbano, Viviendas
Dos casas en el Puerto de la Torre, Málaga

Dos casas en el Puerto de la Torre, Málaga

Contraste, Viviendas
Una casa para vivir

Una casa para vivir

Contraste, Paisaje, Viviendas

EDIFICIO DE VIVIENDAS EN BENALMADENA

Contraste, Urbano, Viviendas
Seis viviendas en VPO en Calle Picacho 6-8, Málaga

6 viviendas VPO en c/Picacho 6-8, Málaga

Contraste, Urbano, Viviendas
Casa en Villar del Olmo, Madrid

Casa en Villar del Olmo, Madrid

Rural, Viviendas
Edificio para 14 viviendas y garaje en Pinto, Madrid

Edificio para 14 viviendas y Garaje en Pinto, Madrid

Precisión, Urbano, Viviendas
Edificio de viviendas en Bravo Murillo, Madrid

Edificio de viviendas en Bravo Murillo, Madrid

Urbano, Viviendas
Caja en Mijas

Casa en Mijas

Contraste, Paisaje, Viviendas
Casa en el Peñoncillo

Casa en el Peñoncillo

Contraste, Paisaje, Precisión, Viviendas
Una casa en Nerja

Una casa en Nerja

Contraste, Viviendas
Casa para un músico

Casa para un músico

Viviendas

Casa Ordenada en Malaga

Contraste, Paisaje, Proyectos, Viviendas
Edificio de viviendas, Calle Carretería, Málaga

Edificio de viviendas, C/Carretería, Málaga

Contraste, Urbano, Viviendas

Una casa en el Monte San Anton

Contraste, Interior, Precisión, Proyectos, Urbano, Viviendas
Casa en el Candado, Málaga

Casa en el Candado, Málaga

Paisaje, Rural, Viviendas
Ampliación de una casa en Mijas

Ampliación de una casa en Mijas

Contraste, Viviendas
Caja en Málaga

Casa en Málaga

Contraste, Interior, Precisión, Urbano, Viviendas